令和07年10月25日 08時33分 更新
次回更新予定日:令和07年10月26日
オークニ不動産
新着売戸建物件情報
お急ぎの方はこちらまでお電話ください
0120-863-092
トップページへ
>
居住用物件一覧へ
> 物件情報
駅別一覧
間取一覧
写真一覧
地図一覧
地域一覧
この他にも売主様等のご都合により、ホームページ上に公開できない物件が多数ございます。
希望条件登録/会員登録をして頂ければ、すべての物件をご覧いただけます。
ぜひ、より多くの物件の中からお客様のご希望に近い物件をお探しください♪
登録はこちらから ⇒
こちら
既に会員登録がお済の方はこちらから ⇒
クリック
物件番号
写真画像
種目
住所1
価格
バス
徒歩
土地面積
建物面積
間取
和暦築年月
詳細
画像
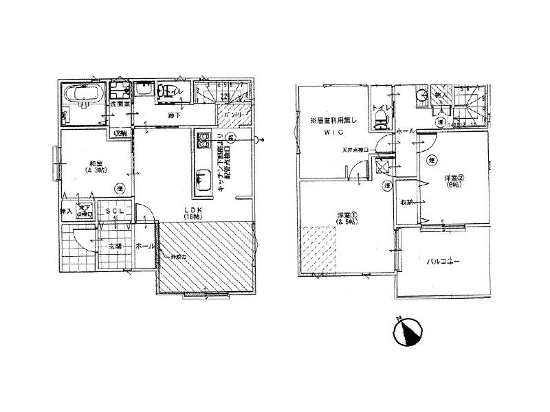
Bk5120
中古戸建
堺市中区八田北町
3,080万円
10分
2分
110.04m
2
99.36m
2
4LDK
H17/02
■土地面積:33.28坪 ■建物面積:30.05坪
【リフォーム】
◆2025年(令和7年)10月末リフォーム工事完了予定!
@システムキッチン(食洗機付き)新調/ユニットバス新調/洗面化粧台新調
A全室クロス張替/クッションフロア張替(トイレ・洗面室)/和室琉球風畳新調
B板間全てフロアタイル貼り/各部屋シーリングライト設置/ハウスクリーニング等
【立地】
◆大型開発分譲地内♪
【間取り】
◆全居室広さ6帖以上ございます♪
【前面道路】
◆幅員:約6.7mで車庫入れもスムーズ♪
Bk5115
新築戸建
堺市中区土師町
4,080万円
−
25分
158.66m
2
103.27m
2
3SLDK
■土地面積:37.62坪 ■建物面積:30.13坪
☆☆☆ 新築一戸建/3号棟・全3区画 ☆☆☆
【間取り】
◆全居室広さ6帖以上ございます♪(ストレージルームを除く。)
◆LDKはゆったりとした広さの18帖♪
【収納】
@床下収納(キッチン+洗面脱衣室)
A洗面室と脱衣室を切り離し、洗面室にはウォークインクローゼット♪
B2階:洋室(7.5帖)とストレージルーム(5.25帖)にウォークインクローゼット♪
C2階ホールにもご家族で利用できるウォークインクローゼットを設置♪
【前面道路】
◆ゆったり幅員:約8m♪
【ガレージ】
◆駐車スペース3台可能です♪(車種による制限がございます。)
※完成時期:2026年(令和8年)3月予定
Bk5111
新築戸建
堺市中区土師町
4,280万円
−
25分
124.38m
2
99.63m
2
3SLDK
■土地面積:37.62坪 ■建物面積:30.13坪
☆☆☆ 新築一戸建/1号棟・全3区画 ☆☆☆
【間取り】
◆全居室広さ6帖以上ございます♪(タタミコーナーを除く。)
◆LDKはゆったりとした広さの18帖♪
【収納】
@床下収納(キッチン+洗面脱衣室)
A2階:各居室にウォークインクローゼット♪
【前面道路】
◆ゆったり幅員:約8m♪
【ガレージ】
◆駐車スペース2台可能です♪(車種による制限がございます。)
※完成時期:2026年(令和8年)3月予定
Bk5114
新築戸建
堺市中区土師町
4,280万円
−
25分
127.29m
2
102.87m
2
3SLDK
■土地面積:38.50坪 ■建物面積:31.11坪
☆☆☆ 新築一戸建/2号棟・全3区画 ☆☆☆
【間取り】
◆全居室広さ6帖以上ございます♪
◆LDKはゆったりとした広さの19.75帖♪
【収納】
@床下収納(キッチン+洗面脱衣室)
A洗面室と脱衣室を切り離し、洗面室にはウォークインクローゼットを設置♪
B2階:各居室にウォークインクローゼット♪
【前面道路】
◆ゆったり幅員:約8m♪
【ガレージ】
◆駐車スペース2台可能です♪(車種による制限がございます。)
※完成時期:2026年(令和8年)3月予定
ページトップへ